Un mur dans la masse

Fichier 10

Semestre 2 – Exercice n°2

Programme : Utiliser 8 volumes cubiques de 5m de côté. Au moins 4 d’entre eux doivent être portés par des colonnes traversables. La parcelle de 25x25m se situe à Muuratsalo, en Finlande.

Ernest-Pignon-Ernest revendique le fait que ses œuvres ne sont pas dessinées pour être exposées dans un musée, mais pour faire vivre un espace urbain. Ainsi, j’ai décidé de créer un lieu aux traits urbains, formé de trois espaces successifs pouvant s’apparenter à une rue, à une impasse et à une place.

Transparence

A l’aplomb d’un mur massif s’élevant à 6 mètres au dessus de nos pieds, il nous est impossible de voir à travers. Pourtant, l’escalier qui le traversera doit nous mener quelque part. Alors peut-être faut-il suggérer la présence de l’espace où nous mènera la descente ou la montée de l’escalier. Nous avons donc réalisé des percements laissant entrapercevoir la destination du passant.

Lors de la traversée, une ouverture nous permet d’observer avec une plus grande netteté le parc. A l’instar de l’ouverture zénithale, elle vient éclairer le palier.

Dilatation

Pour montre que l’escalier était creusé dans la masse du mur, nous avons voulu jouer avec les hauteurs, avec la puissante pesanteur de la matière au dessus de nous. Tantôt nous sommes « enfermé », tantôt cette masse disparaît pour nous laisser plus de place.

La place

En sortant de l’impasse, le contraste est fort : le visiteur passe du lieu le plus étroit au plus spacieux, du plus sombre au plus lumineux, du plus clos au plus ouvert. Il continue son parcours en arrivant sur la place, où est affichée la dernière œuvre, la plus grande elle aussi. Sa visite se termine enfin par une pente signifiant la sortie du lieu, le retour au réel espace urbain.

archifolio

Une grille directrice

Pour terminer, sur un aspect plus technique et par souci d’une composition agréable, les éléments du projets ont été assemblés ensemble à l’aide d’une grille en tiers. Plusieurs rectangles d’or ont aussi été utilisés pour placer les éléments supplémentaires et ajuster les proportions.

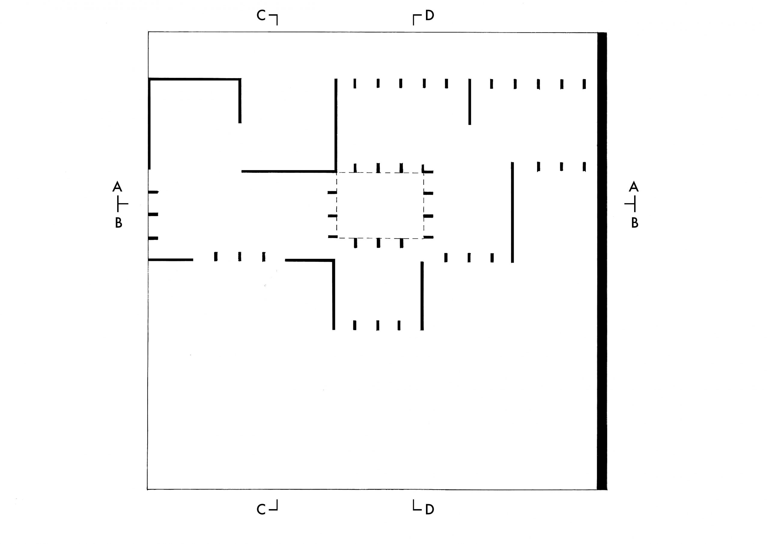
Dessins techniques

Plan
Coupe AA
Coupe BB
Coupe BB
Coupe DD