Nouvelle Bastide

Semestre 5 – Logement individuel groupé
Comment allier le rêve de la maison avec jardin et la lutte contre l’extension périurbaine ? L’objectif de ce projet est de questionner les futures typologies de logement qui composeront nos villes.
Programme : mettre au point un plan urbain pour une cinquantaine de logements, du T2 au T5. Puis, développer l’un de ces logements jusqu’au détails architecturaux et constructifs.
Site : la parcelle se situe à Gimont, une bastide gersoise datant du 13ᵉ siècle. La ville est aujourd’hui victime de l’attraction de Toulouse et d’un développement urbain incontrôlé, entrainant une baisse de l’activité locale et une perte des savoir-faire.


Un voyage à travers les échelles
De la conception d’un plan urbain à la fabrication d’une brique, ce projet cherche à requestionner et remodeler les traditions urbaines et architecturales locales à de nouveaux modes de vie pour l’avenir.
Le nouvel ensemble urbain associe le besoin de densité, de respirations et d’espaces verts, tout en gardant la forme traditionnelle en îlots. Les nouvelles parcelles comptent une cinquantaine de nouveaux logements (du T2 au T5). Il faut y ajouter la conservation des logements sociaux existants, la création d’un parking fermé de 60 places ainsi que l’ajout de commerces, d’un centre culturel et d’un parc. Le pari est gagnant : nous sommes parvenus à avoir plus de logements, plus d’équipements public, plus de places parkings et surtout plus d’espaces verts sur la même superficie !



Un logement, pour qui ?
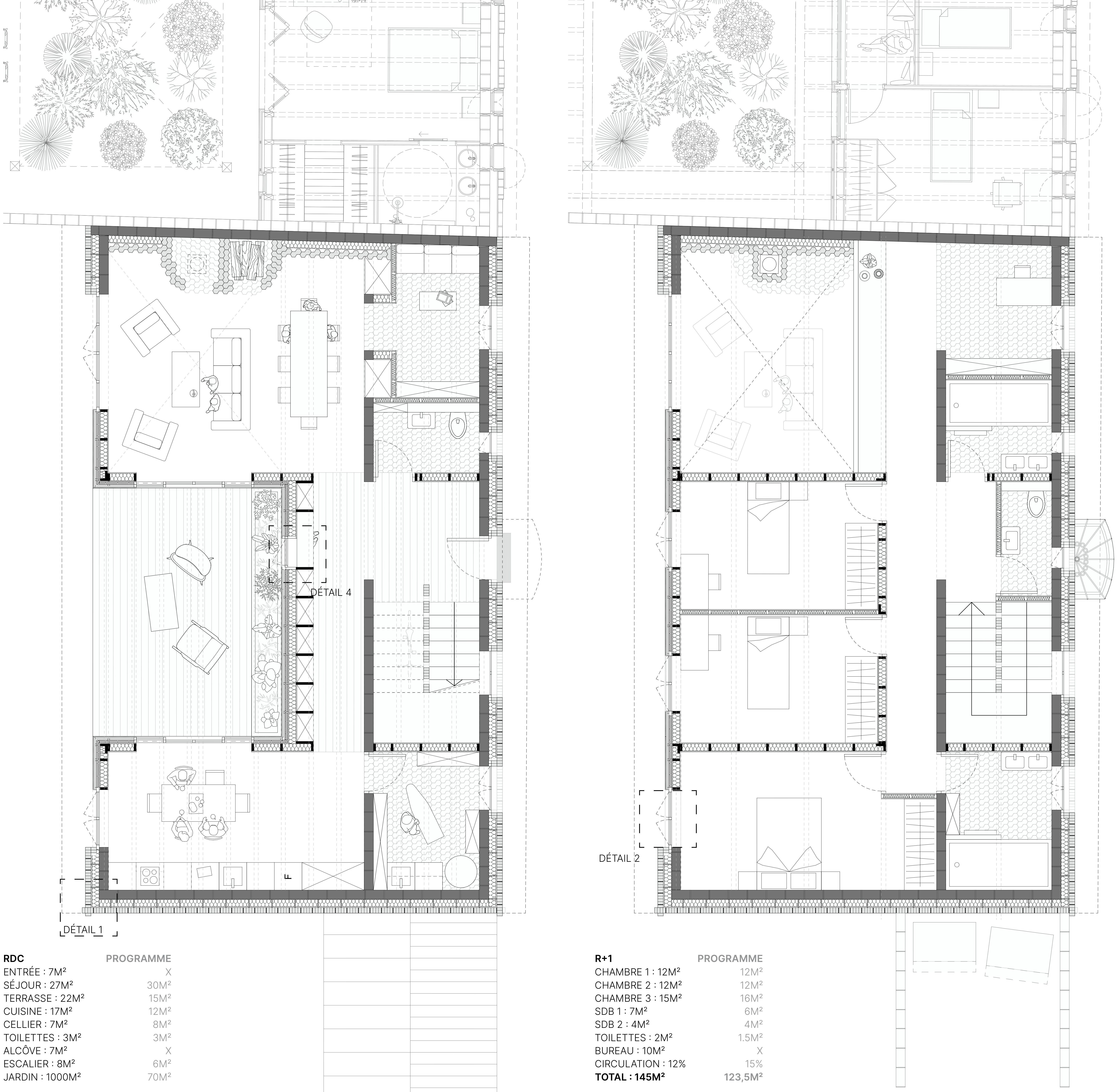
Après avoir établi un plan urbain, nous avons développé plusieurs logements. Un seul sera présenté ici. Ce logement est un T4 faisant frontière entre la rue d’un côté et un jardin partagé avec son îlot de l’autre.
Le dessein le plus noble de l’architecture est peut-être d’offrir des lieux de vie qui seront habités et aimés, qui seront une scène où la vie prendra place. C’est pourquoi il est difficile de dessiner un logement sans savoir qui l’habitera. J’ai donc fait le choix de me projeter en tant qu’habitant, impliquant des choix arbitraires. Ce sont ces choix qui feront que certains détesteront le logement, mais que quelques uns auront envie d’y vivre.


Demain, sans oublier hier
Ce projet questionne les modes de vie de demain (collectif, densité, indépendance, proximité…). Pourtant, il faut arriver à associer ces nouveautés avec ce qui a fonctionné hier. Et cela dans la façon de vivre, d’habiter et de construire. Par exemple, perpétuer la tradition locale de la brique n’empêche pas d’inventer son propre module. C’est pourquoi j’ai imaginé une brique hexagonale. Habiter dans un logement individuel avec jardin ne doit plus signifier d’habiter en dehors des villes. Il faut associer les aspirations contemporaines avec les formes urbaines qui ont fait la force de nos villes pendant des siècles.
Pour parler du logement en lui-même, les espaces principaux (cuisine, séjour, terrasse, chambre) sont orientés vers le jardin à l’ouest, tandis que les espaces secondaires (toilettes, cellier, circulations…) permettent de créer une « bande » tampon entre la rue et les espaces principaux. Plusieurs espaces, à l’instar d’une alcôve ou d’un bureau, sont flexibles et peuvent être appropriés librement par les habitants.


La question constructive
Le projet est composé d’une enveloppe faite d’un double mur en brique, dont la brique de parement est hexagonale. L’hexagone est l’une des trois seules formes permettant un pavage régulier du plan. Cela nécessite toutefois des adaptations des briques pour les angles. À l’intérieur de cette enveloppe, le reste de la structure est en ossature bois. Cette structure se veut polyvalente et se décline en mobilier (assises et rangements).





